| 【七手绘】·【18年考研冲刺押题班】很高心又和大家见面了!今天咱们讲讲快题中平、立面的画法!平面图的定义:平面图是地图的一种。当测区面积不大,半径小于10公里(甚至25公里)的面积时,可以用水平面代替水准面 |

很高心又和大家见面了!
今天咱们讲讲快题中平、立面的画法!
平面图的定义:
平面图是地图的一种。当测区面积不大,半径小于10公里(甚至25公里)的面积时,可以用水平面代替水准面。在这个前提下,可以把测区内的地面景物沿铅垂线方向投影到平面上,按规定的符号和比例缩小而构成的相似图形,称为平面图。
这个平面是怎么画出来的呢!
平面图的画法:
步骤 1:网格法定出墙体的位置,并标出尺寸线。
步骤 2:可以通过1:100计量纸练习尺度感,网格定出来后直接靠感觉画室内物体平面,这样可以加快画图速度。
步骤 3:标出尺寸线,注意标的是轴间距。具体标注细节见上期环艺快题考前细节分析(一)。
立面图的定义:
一座建筑物是否美观,很大程度上决定于它在主要立面上的艺术处理,包括造型与装修是否优美。在设计阶段中,立面图主要是用来研究这种艺术处理的。在施工图中,它主要反映房屋的外貌和立面装修的做法。在与房屋立面平行的投影面上所作房屋的正投影图,称为建筑立面图,简称立面图。
立面图的画法:
步骤 1:网格法定出墙体的位置,标出尺寸线。
步骤 2:网格定出来后直接靠感觉画室内物体立面,加快画图速度,快题考试中立面图用最少的时间表达出设计元素。
步骤 3:标出尺寸线,注意立面标的仍然是轴间距。具体标注细节见上期环艺快题考前细节分析(一)。
更多平、立面图参考......
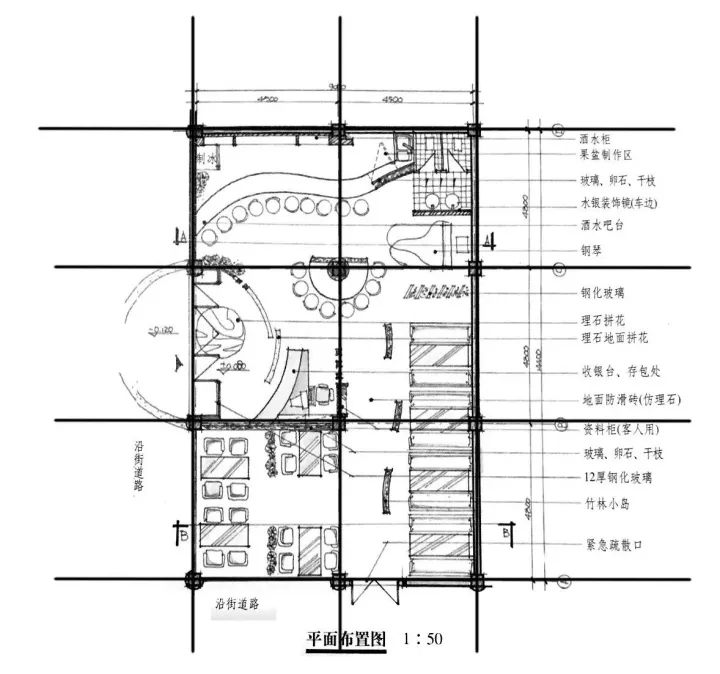
第一套图:



第二套图

本期咱们先讲这些!
小伙伴们记住了吗!
期待你的进步!
咱们下期再见!
预告:下期我们继续讲快题中平、立面上色画法!




很高心又和大家见面了!
今天咱们讲讲快题中平、立面的画法!
平面图的定义:
平面图是地图的一种。当测区面积不大,半径小于10公里(甚至25公里)的面积时,可以用水平面代替水准面。在这个前提下,可以把测区内的地面景物沿铅垂线方向投影到平面上,按规定的符号和比例缩小而构成的相似图形,称为平面图。















